Bygherre
Zahles Gymnasium
Opgave
totalrenovering
Zahles Gymnasium
totalrenovering
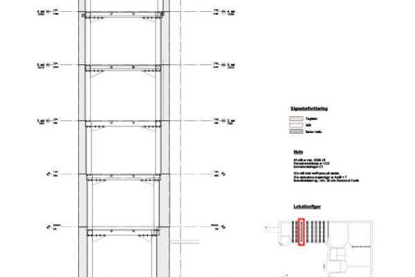
Vi startede med at ramme funderingspæle 9 meter ned i den københavnske
voldgrav. Oven på pælene har vi fra kælderen til 5. sal sat et stort stålstativ til afstivning af den gamle bygning.
Herefter har vi indrettet nye lokaler til SFO i kælderen. De øvrige 4 etager er blevet renoveret med nye gulve og akustik lofter, toiletter samt nyt hjemmekundskabslokale.